
|
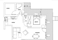
Περιγραφή Γκαρσονιέρα στον ημιώροφο (με ανεξάρτητο είσοδο) σε μια διώροφη μονοκατοικία στο χωριό Μαγικό - Ξάνθης. Εμβαδόν 76,23 μ2 Διαθέτει σαλόνοκουζινα, 1 υπνοδωμάτιο, μπάνιο και WC. Αποθήκη στο υπόγειο. Αυτόνομη θέρμανση με ατομική εγκατάσταση με λέβητα πετρελαίου. Ηλιακό. Κλιματισμός. Τέντες. Parking. Έτος κατασκευής 2001 Έτος ανακαίνιση 2024 |
![]()
|
| ||
| Περισσότερα |
| ||
| Περισσότερα |
| ||
| Περισσότερα |