
|
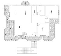
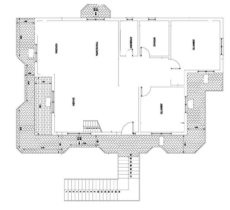
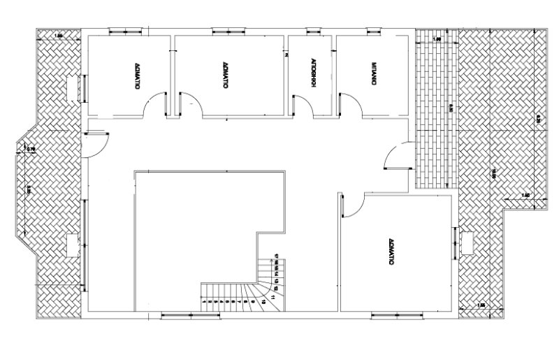
Περιγραφή Διώροφo διαμέρισμα με σοφίτα (με ανεξάρτητο είσοδο) σε μια διώροφη μονοκατοικία στο χωριό Μαγικό - Ξάνθης. Στο ακίνητο εγκαταστάθηκε φωτοβολταϊκό σύστημά για 10 kwh με σύμβασή με την ΔΕΗ για 25χρονια - μέχρι 2039 Διαμέρισμα αποτελείται από δύο επίπεδα, τα οποία επικοινωνούν μεταξύ τους με εσωτερική σκάλα. Συνολικό εμβαδόν κατοικίας 248,94 μ2 Πρώτος όροφος 144,52 μ2 Σοφίτα 104,42 μ2 Στον πρώτο όροφο του σπιτιού βρίσκονται η κεντρική είσοδος, σαλονοκουζίνα με τζάκι, δύο υπνοδωμάτια, μπάνιο και αποθήκη. Ενώ το δεύτερο επίπεδο περιλαμβάνει τα τρία υπνοδωμάτια, μπάνιο και αποθήκη. Αποθήκη στο υπόγειο. Αυτόνομη θέρμανση με ατομική εγκατάσταση με λέβητα πετρελαίου. Ηλιακό. Κλιματισμός. Τέντες. Parking. Έτος κατασκευής 2001 Έτος ανακαίνιση 2024 |
![]()
|
| ||
| Περισσότερα |
| ||
| Περισσότερα |
| ||
| Περισσότερα |